Базовая комплектация включает в себя:
Дом с теплым контуром, черновым полом из OSB, полностью отделанным фасадом, остеклением, входной дверью и кровлей.
Стандартная комплектация включает в себя:
Чистовую обшивку стен и потолка, разводку инженерных сетей, установку светильников, розеток, выключателей.
Комплектация комфорт включает в себя:
Отделку пола и стен санузла кварцвиниловой плиткой, ламинат на полу в комнатах, монтаж сантехнических приборов и межкомнатных дверей.
Ориентировочная стоимость доставки, фундамента и монтажа дома в пределах 200 км. от производства 730 тыс. руб.
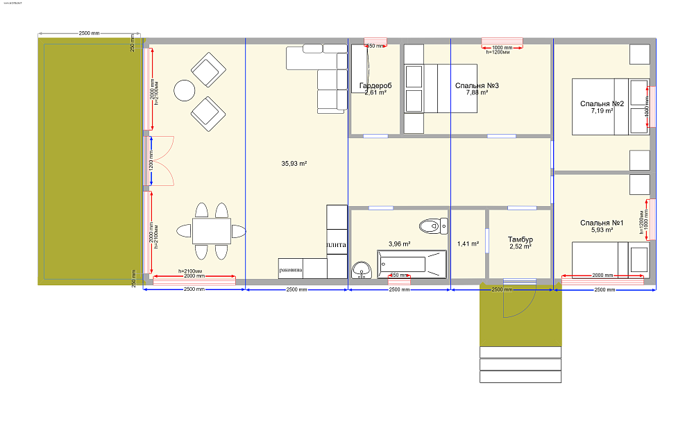
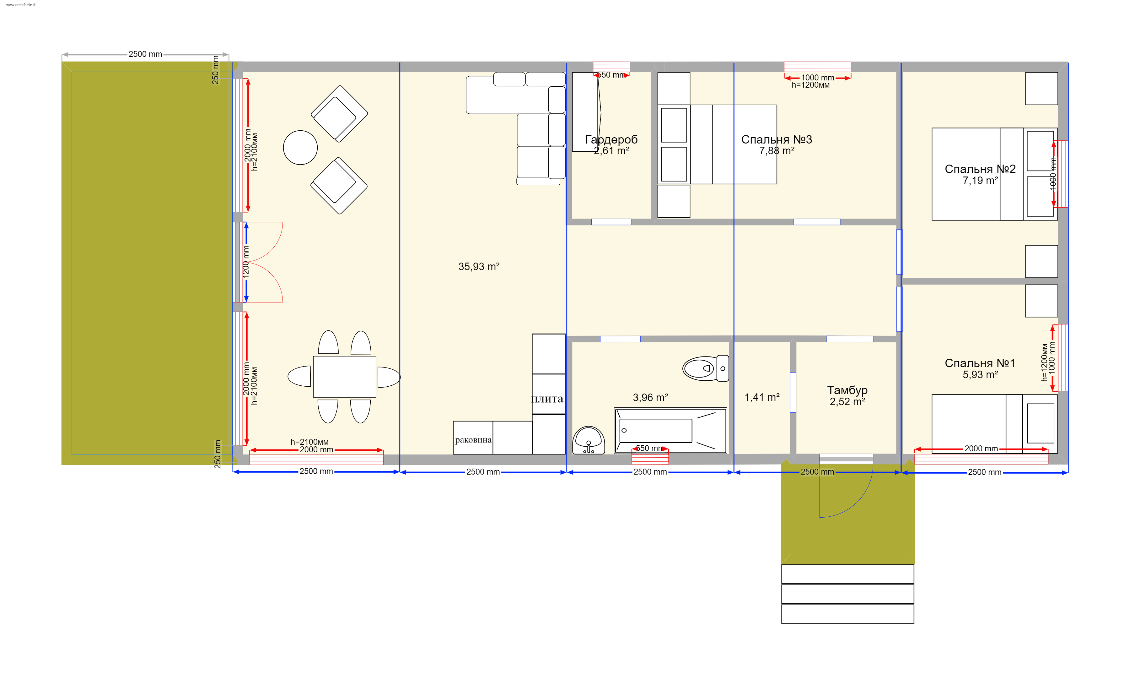
Длительность монтажа на участке зависит от выбранной комплектации.
Террасы рассчитывается индивидуально из расчёта 10 тыс. руб. за м2 настила и 15 тыс. руб. за м2 навеса.
Ознакомиться с производством и образцами домов можно по адресу: Московская обл., г. Сергиев Посад, с. Глинково 22А, понедельник-пятница с 10 до 18, суббота с 10 до 16, воскресенье - выходной.
*Цена актуальна на вариант планировки под №1 и при строительстве за собственные средства. При строительстве в ипотеку, через эскроу счет, стоимость рассчитывается индивидуально.
| Комплектация | База | Стандарт | Комфорт |
|---|---|---|---|
| Каркас из сухой импрегнированной древесины сорта АВ | |||
| Подшив основания пола ветрозащитой и оцинкованной сеткой | |||
| Утепление пола минеральной ватой 200мм | |||
| Утепление стен ватой 150мм | |||
| Ветрозащитная мембрана Изоспан AQ proff | |||
| Фольгированная пароизоляция Ондутис R Termo | |||
| Утепление потолка минеральной ватой 200мм | |||
| Черновой пол в сухих зонах OSB, в мокрых ЦСП | |||
| Комбинированная отделка фасада металлом и деревом | |||
| Окна в теплом профиле 70мм | |||
| Входная дверь стеклянная в усиленном ПВХ профиле | |||
| Вентиляция | |||
| Монтаж каркаса перегородок | |||
| Заполнение межкомнатных перегородок звукоизоляционными плитами | |||
| Чистовая обшивка стен деревом (возможны другие варианты) | |||
| Обрамление откосов, окон и входной двери деревом | |||
| Монтаж ламината на пол 33 класса | |||
| Монтаж кварцвинила на пол в санузле | |||
| Монтаж деревянного или натяжного потолка | |||
| Разводка электрики с учетом монтажа щитка | |||
| Монтаж розеток, выключателей и светильников | |||
| Монтаж водоснабжения и канализации | |||
| Монтаж сантехнических приборов | |||
| Монтаж кабельного теплого пола в с/у | |||
| Монтаж межкомнатных дверей МДФ | |||
| Монтаж 2-х уличных светильников и 1-й розетки |
Наш адрес: г. Сергиев Посад, Глинково 22А
Сайт носит информационный характер и ни при каких условиях не является публичной офертой, определяемой положениями ст. 437 ГК РФ. Размещенная на данном сайте информация может быть изменена в любое время без предварительного уведомления.
СтройГрад © 2026 Все права защищены. Копирование материалов с сайта разрешено с указанием источника.
